Catskill All Season

About two or so hours north of NYC are the Catskill Mountains, a beautiful forested region which is speckled throughout by artisanal communities and wonderfully hidden homes.

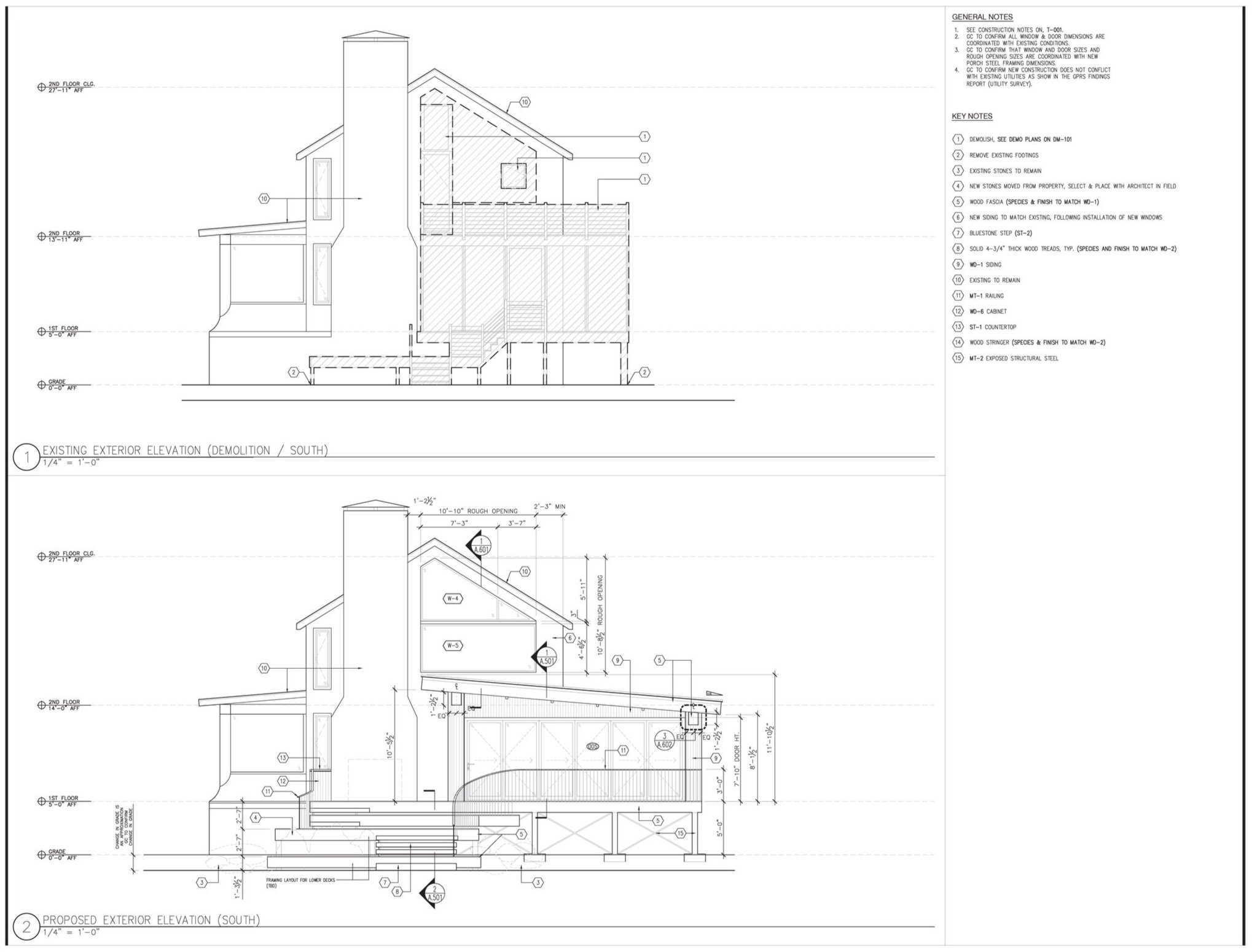
Our client lived in this region and was seeking some additional outdoor space, as well as, an all season room which would blend itself into their natural and calm hilltop property. Our design proposed a wooden deck that terraced back down to the grade below and tied itself into the existing landscape, incorporating local materials and existing site stones into its footprint. At the top of the deck and off an existing dining room was constructed a fully glazed all season room which offered panoramic views around the site and operable glass doors that could be fully opened in the warmer months, changing the space into simple covered porch.

Project w/ Polyarch Studio

View through Kitchen